
臨河街南延長線工程位于長春市南關區,北起臨河街既有路南端(和美路),南止天青路,道路跨越南關區與凈月區,途中穿越繞城高速、農大支溝、后三家子溝、靠邊王支溝,道路設計車速40km/h,道路全長2839.919米,為通向凈月區域內南北方向次干路。
道路標準橫斷面為兩幅路形式:2.5m(非機動車道)+2.0m(人行道)+1.5m(綠化帶)+12.0m(機動車道)+4.0m(中央分隔帶)+12.0m(機動車道)+1.5m(綠化帶) +2.0m(人行道)+2.5m(非機動車道))=40.0m。
主要設計內容包含道路工程、排水工程、橋梁工程、涵洞工程、管廊工程等。
管廊工程:位于路西側(云友路南側180m—凈月乙一路),全長900m,四倉16.1m寬,入廊管線包含:電力、熱力、中水、給水、通信等,管廊穿越農大支溝、后三家子溝連接既有管廊;
U型槽:下穿繞城高速,U型槽長度約295m,橫斷面凈寬度約為28m;
橋梁工程:共包含1座涵洞、兩座橋梁;
繞城高速橋梁:包含繞城高速橋梁一座;
泵站:共計一座泵站。
本工程涉及專業較多,屬于綜合型市政項目。
2、重要節點及設計亮點
繞城高速節點設計
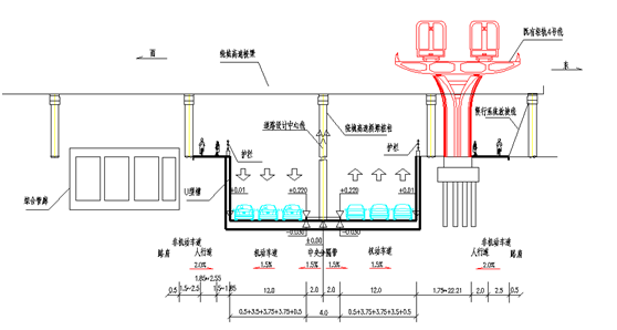
臨河街南延長線穿越繞城高速采用下穿方式穿越,于臨河街線位處,繞城高速路基改橋梁形式采用5*25梁橋形式,工藝先修建繞城高速橋梁,橋墩既為墩又為樁,橋建成后逐步開挖修建U型槽、管廊、人行道等。其中由東向西第一跨為既有輕軌四號線及人行道空間,第二、三跨為U型槽及機動車道空間,第四跨為綜合管廊空間。

精細化人行道設計,采用獨立分離式設計。

因U型槽距離輕軌承臺基礎較近,開挖采用雙排高壓旋噴樁支護開挖,并通過輕軌安全評價。

極限縱坡與自融雪路面
輕軌N23號承臺因修建高度較高,如將N23號承臺埋至車行道下,需采用極限縱坡4%,方可保證繞城高速下凈空4.6m,4%極限坡度段采用自融雪路面技術,避免清雪不及時縱坡較大造成的行車困難。
極限縱坡與自融雪路面
輕軌N23號承臺因修建高度較高,如將N23號承臺埋至車行道下,需采用極限縱坡4%,方可保證繞城高速下凈空4.6m,4%極限坡度段采用自融雪路面技術,避免清雪不及時縱坡較大造成的行車困難。

未采用自融雪路采用自融雪路
泵站節點
本工程涉及一座雨水泵站,為下穿繞城高速U型槽內雨水提升泵站。道路紅線內慢行系統下布置雨水泵站,可避免征地、土地變性等問題。
泵站布設于樁號0+560西側慢行系統位置,在保證泵站與西側管廊作業面的條件下,布置泵站、分流池布設在慢行系統下,泵站檢修孔采用隱形井蓋布設人行方磚,通氣口及變壓器布置在紅線外,保證慢行系統連通。
因泵站埋深達15m以上,涉及在慢行系統6m范圍內,狹小空間深基坑支護,同時因靠近管廊及機動車道,無法進行整體碾壓,為保證回填密實,避免不均勻沉降,采用水沉法回填,這對設計方案及施工工藝質量都是一個考驗。

后三家子溝水利及凈月排水節點
后三家子水利高程過高,導致周邊地塊排水無法排入,同時凈月區規劃采用泵站形式排放47公頃內雨水,需在臨河街南延地塊整體考慮協調水利、高速、凈月等部門,促使排水方案合理。
采用橫撐支撐橋臺后,采用鋼筋混凝土U型槽頂進,加固橋臺基礎,從而降低基礎深度,達到降低水利高程的目的。

BIM模型展示
采用Bently軟件對項目進行BIM翻模,并獲得了吉林省BIM建模大賽三等獎。

臨河街南延長線為道路交通分院2018年承接的大型綜合市政項目,技術上涉及專業較多。同時因項目地處南關區與凈月區交界,跨越多條規劃河溝、下穿繞城高速、輕軌附近深基坑及重大結構物設計等問題,涉及凈月管委會、水利、交通廳、軌道集團等部門協調,使得項目流程也較為復雜。
臨河街南延長線是道路交通分院牽頭,由市政院全部生產部門共同參與的完成的,在設計過程處處體現著我院多專業、多部門團隊協作的工作縮影。在設計周期較短的條件下,更體現了市政院高效的團隊執行力。
施工是檢驗設計成果完善和合理的第一關,作為2019年為數不多開工的建委項目,建設過程受中心及建委領導關注,經過一年的施工建設,臨河街南延長線于2019年10月7日通車至天工路,工程完成75% ,重要復雜節點均完成。除因建設單位征地困難,要求更改泵站位置外,臨河街至今無變更,在臨河街南延長線設計過程中,貫徹慎密精細的設計理念。
項目中采用海綿城市、自融雪路面等先進技術,同時在項目施工圖完成后,采用Bently軟件對項目進行BIM翻模,做到勤于學習,敢于創新。
臨河街項目體現我分院團隊、傳承、敬業、創新的企業文化精神。
